
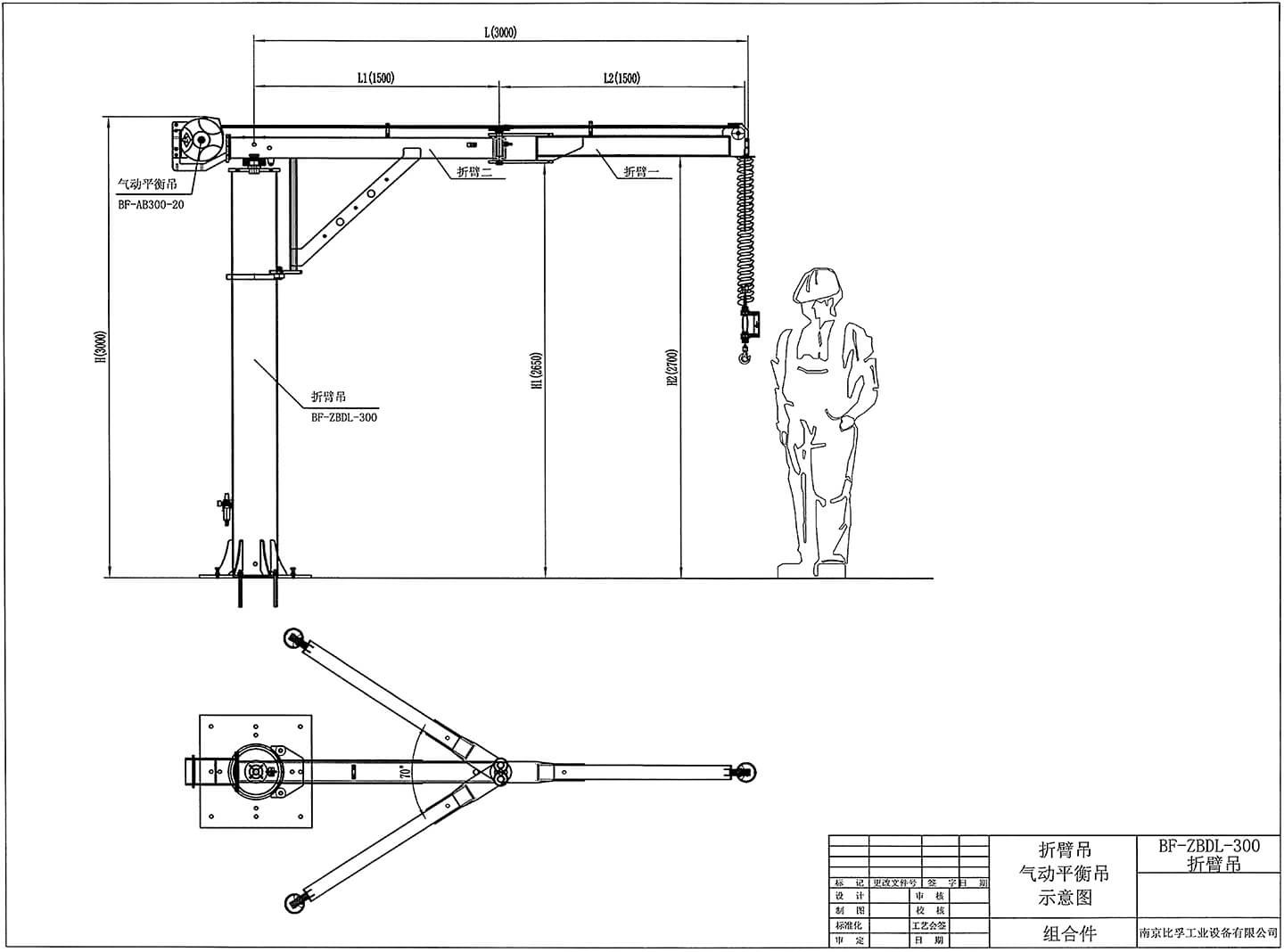
BF-ZXBL-300
折臂吊型號:BF-ZXBL-300
BF:比孚公司首字母拼音縮寫
ZXBL:折臂吊
300:額定載荷
| 項目 | 性能指標 | 單位 |
| 型號 | BF-ZXBL-300 | 折臂吊 |
| 額定載荷 | 0-300(可根據客戶需求定制) | kg |
| 總高度 | H(可根據客戶需求定制) | mm |
| 折臂一下沿到地面 | H1(可根據客戶需求定制) | mm |
| 折臂二下沿到地面 | H2(可根據客戶需求定制) | mm |
| 機械臂總長 | L(可根據客戶需求定制) | mm |
| 折臂一長 | L1(可根據客戶需求定制) | mm |
| 折臂二長 | L2(可根據客戶需求定制) | mm |
| 工作旋轉覆蓋范圍角度 | 360° | 度 |
| 配30°可調限位 | 度 | |
| 工作級別 | A3 | |
| 運行方式 | 手動 |

新能源動力設備,人機工程學裝卸系統
折臂吊
折臂吊起重機具有結構新穎、伸屈自如、操作靈便、高效節能等特點。利用折臂一與折臂二作彎曲和旋轉運動,在控制工作區域內避讓物體,使工作區域最大化。特別在設備稠密、短距離吊運、作業頻繁的生產線上應用折臂吊起重機更能提高生產效率和降低生產成本。
工作原理:
折臂吊是屬于輕型工作強度起重機,由立柱、折臂一、折臂二、回轉驅動裝置及提升機組成。具有自重輕、跨度大、利用氣動平衡吊或氣動葫蘆起吊工件或重物。
懸臂吊優點與特性:
1、折臂吊可以彎曲,折疊,節約空間。
2、機械臂可選方形鋼材質軌道。
3、回轉角度0-360度
4、安裝方便,快捷。